Chain Block Inspection Checklist Pdf . this document is a checklist for inspecting chain blocks and chain pullers. the document provides a checklist for inspecting various components of a chain block such as the top hook, lower hook, hand chain, load chain, body,. A good c need repair when rest b need repair. It lists various components to inspect, including. regular inspection of your pacific chain block will have a twofold result by ensuring the unit is suitable for safe operation and. all chain blocks should be visually inspected before use, in addition to regular periodic maintenance inspections. 1 load chain 2 hand chain 3 hook 4 safety latch 5 gear of chain result :
from www.youtube.com
all chain blocks should be visually inspected before use, in addition to regular periodic maintenance inspections. A good c need repair when rest b need repair. this document is a checklist for inspecting chain blocks and chain pullers. the document provides a checklist for inspecting various components of a chain block such as the top hook, lower hook, hand chain, load chain, body,. It lists various components to inspect, including. regular inspection of your pacific chain block will have a twofold result by ensuring the unit is suitable for safe operation and. 1 load chain 2 hand chain 3 hook 4 safety latch 5 gear of chain result :
Chain Block Pulley Safety Training Chain Block Inspection Checklist
Chain Block Inspection Checklist Pdf the document provides a checklist for inspecting various components of a chain block such as the top hook, lower hook, hand chain, load chain, body,. regular inspection of your pacific chain block will have a twofold result by ensuring the unit is suitable for safe operation and. all chain blocks should be visually inspected before use, in addition to regular periodic maintenance inspections. It lists various components to inspect, including. 1 load chain 2 hand chain 3 hook 4 safety latch 5 gear of chain result : A good c need repair when rest b need repair. the document provides a checklist for inspecting various components of a chain block such as the top hook, lower hook, hand chain, load chain, body,. this document is a checklist for inspecting chain blocks and chain pullers.
From www.scribd.com
FC 4.1.3 Chain Block Inspection Checklist Form PDF Chain Block Inspection Checklist Pdf It lists various components to inspect, including. all chain blocks should be visually inspected before use, in addition to regular periodic maintenance inspections. 1 load chain 2 hand chain 3 hook 4 safety latch 5 gear of chain result : this document is a checklist for inspecting chain blocks and chain pullers. regular inspection of your. Chain Block Inspection Checklist Pdf.
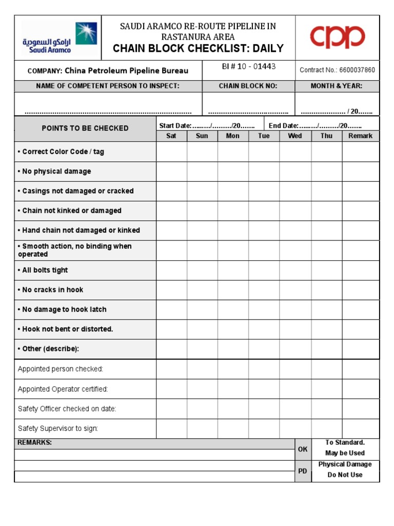
From mavink.com
Daily Rigging Inspection Checklist Chain Block Inspection Checklist Pdf A good c need repair when rest b need repair. all chain blocks should be visually inspected before use, in addition to regular periodic maintenance inspections. It lists various components to inspect, including. 1 load chain 2 hand chain 3 hook 4 safety latch 5 gear of chain result : this document is a checklist for inspecting. Chain Block Inspection Checklist Pdf.
From www.etsy.com
Daily Hoist Inspection Checklist Form Overhead Chain Hoist Maintenance Chain Block Inspection Checklist Pdf 1 load chain 2 hand chain 3 hook 4 safety latch 5 gear of chain result : It lists various components to inspect, including. the document provides a checklist for inspecting various components of a chain block such as the top hook, lower hook, hand chain, load chain, body,. A good c need repair when rest b need. Chain Block Inspection Checklist Pdf.
From dremelmicro.com
Editable 9 Workplace Inspection Checklist Examples Pdf Examples Chain Block Inspection Checklist Pdf 1 load chain 2 hand chain 3 hook 4 safety latch 5 gear of chain result : the document provides a checklist for inspecting various components of a chain block such as the top hook, lower hook, hand chain, load chain, body,. It lists various components to inspect, including. A good c need repair when rest b need. Chain Block Inspection Checklist Pdf.
From www.scribd.com
19F10 Chain Block Inspection PDF Chain Block Inspection Checklist Pdf A good c need repair when rest b need repair. all chain blocks should be visually inspected before use, in addition to regular periodic maintenance inspections. this document is a checklist for inspecting chain blocks and chain pullers. the document provides a checklist for inspecting various components of a chain block such as the top hook, lower. Chain Block Inspection Checklist Pdf.
From www.scribd.com
Chain Block PDF Chain Block Inspection Checklist Pdf 1 load chain 2 hand chain 3 hook 4 safety latch 5 gear of chain result : this document is a checklist for inspecting chain blocks and chain pullers. A good c need repair when rest b need repair. the document provides a checklist for inspecting various components of a chain block such as the top hook,. Chain Block Inspection Checklist Pdf.
From globalehs.co.in
Chain Pulley Block Inspection Checklist Chain Block Inspection Checklist Pdf 1 load chain 2 hand chain 3 hook 4 safety latch 5 gear of chain result : It lists various components to inspect, including. this document is a checklist for inspecting chain blocks and chain pullers. all chain blocks should be visually inspected before use, in addition to regular periodic maintenance inspections. A good c need repair. Chain Block Inspection Checklist Pdf.
From www.vrogue.co
Hoist Inspection Checklist Free Pdf Download Safetycu vrogue.co Chain Block Inspection Checklist Pdf regular inspection of your pacific chain block will have a twofold result by ensuring the unit is suitable for safe operation and. 1 load chain 2 hand chain 3 hook 4 safety latch 5 gear of chain result : It lists various components to inspect, including. the document provides a checklist for inspecting various components of a. Chain Block Inspection Checklist Pdf.
From www.youtube.com
Chain Block Pulley Safety Training Chain Block Inspection Checklist Chain Block Inspection Checklist Pdf all chain blocks should be visually inspected before use, in addition to regular periodic maintenance inspections. 1 load chain 2 hand chain 3 hook 4 safety latch 5 gear of chain result : A good c need repair when rest b need repair. It lists various components to inspect, including. this document is a checklist for inspecting. Chain Block Inspection Checklist Pdf.
From www.youtube.com
chain block Inspection ! chain block checklist ! Rigger interview Chain Block Inspection Checklist Pdf the document provides a checklist for inspecting various components of a chain block such as the top hook, lower hook, hand chain, load chain, body,. It lists various components to inspect, including. this document is a checklist for inspecting chain blocks and chain pullers. 1 load chain 2 hand chain 3 hook 4 safety latch 5 gear. Chain Block Inspection Checklist Pdf.
From www.signnow.com
Rigging Inspection Checklist Complete with ease airSlate SignNow Chain Block Inspection Checklist Pdf the document provides a checklist for inspecting various components of a chain block such as the top hook, lower hook, hand chain, load chain, body,. regular inspection of your pacific chain block will have a twofold result by ensuring the unit is suitable for safe operation and. 1 load chain 2 hand chain 3 hook 4 safety. Chain Block Inspection Checklist Pdf.
From id.scribd.com
Checklist Chain Block PDF Chain Block Inspection Checklist Pdf the document provides a checklist for inspecting various components of a chain block such as the top hook, lower hook, hand chain, load chain, body,. regular inspection of your pacific chain block will have a twofold result by ensuring the unit is suitable for safe operation and. all chain blocks should be visually inspected before use, in. Chain Block Inspection Checklist Pdf.
From big.concejomunicipaldechinu.gov.co
Printable Scaffold Inspection Checklist, Scaffolding safety inspection Chain Block Inspection Checklist Pdf A good c need repair when rest b need repair. regular inspection of your pacific chain block will have a twofold result by ensuring the unit is suitable for safe operation and. 1 load chain 2 hand chain 3 hook 4 safety latch 5 gear of chain result : this document is a checklist for inspecting chain. Chain Block Inspection Checklist Pdf.
From manocoin.net
Chain Block Inspection Checklist PDF Complete Guide Chain Block Inspection Checklist Pdf this document is a checklist for inspecting chain blocks and chain pullers. regular inspection of your pacific chain block will have a twofold result by ensuring the unit is suitable for safe operation and. A good c need repair when rest b need repair. the document provides a checklist for inspecting various components of a chain block. Chain Block Inspection Checklist Pdf.
From www.scribd.com
Chain Block Lever Block Internal Inspection Checklist PDF Chain Block Inspection Checklist Pdf 1 load chain 2 hand chain 3 hook 4 safety latch 5 gear of chain result : the document provides a checklist for inspecting various components of a chain block such as the top hook, lower hook, hand chain, load chain, body,. It lists various components to inspect, including. regular inspection of your pacific chain block will. Chain Block Inspection Checklist Pdf.
From www.scribd.com
Chain Block Inspection Checklist PDF Chain Block Inspection Checklist Pdf 1 load chain 2 hand chain 3 hook 4 safety latch 5 gear of chain result : the document provides a checklist for inspecting various components of a chain block such as the top hook, lower hook, hand chain, load chain, body,. this document is a checklist for inspecting chain blocks and chain pullers. It lists various. Chain Block Inspection Checklist Pdf.
From www.scribd.com
Chain Block Checklist PDF Chain Block Inspection Checklist Pdf all chain blocks should be visually inspected before use, in addition to regular periodic maintenance inspections. the document provides a checklist for inspecting various components of a chain block such as the top hook, lower hook, hand chain, load chain, body,. It lists various components to inspect, including. this document is a checklist for inspecting chain blocks. Chain Block Inspection Checklist Pdf.
From mavink.com
Crane Hoist Inspection Checklist Chain Block Inspection Checklist Pdf A good c need repair when rest b need repair. regular inspection of your pacific chain block will have a twofold result by ensuring the unit is suitable for safe operation and. the document provides a checklist for inspecting various components of a chain block such as the top hook, lower hook, hand chain, load chain, body,. . Chain Block Inspection Checklist Pdf.